Um espaço aconchegante e acolheador para um condomínio com atmosfera bucólica na cidade de Guarapuava
Um espaço aconchegante e acolheador para um condomínio com atmosfera bucólica na cidade de Guarapuava
Um espaço aconchegante e acolheador para um condomínio com atmosfera bucólica na cidade de Guarapuava
Ficha Técnica
Localização Guarapuava, PR - Brasil
Área 250 m2
Ano do Projeto 2021
Status Em Obras
Imagens
Thiago Augustos Pregnolato Alves
Solo Arquitetos (Co-Autor)
Priscilla Muller Studio (Co-Autor)
Luminotécnico
É Iluminação
Faust Arquitetos nasceu do legado do Solo Arquitetos, com este projeto sendo concebido durante o período de funcionamento do Solo
Localização Guarapuava, PR - Brasil
Área 250 m2
Ano do Projeto 2021
Status Em Obras
Imagens
Thiago Augustos Pregnolato Alves
Solo Arquitetos (Co-Autor)
Priscilla Muller Studio (Co-Autor)
Faust Arquitetos nasceu do legado do Solo Arquitetos, com este projeto sendo concebido durante o períodode funcionamento do Solo
Ficha Técnica
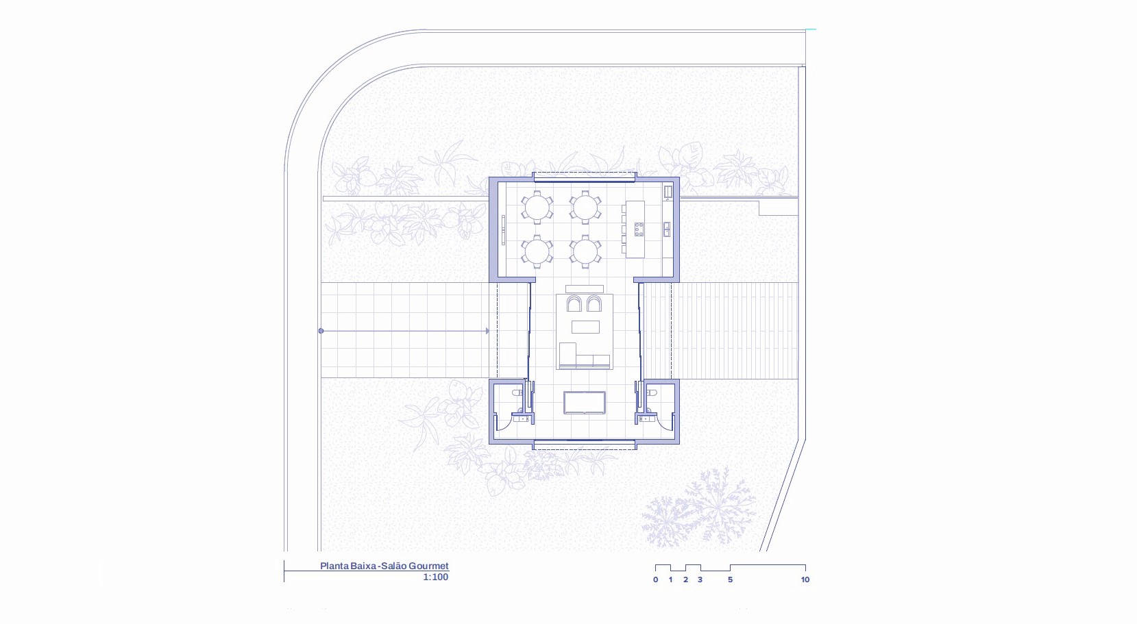
Condomínio Tramonto - Salão Gourmet
Complexo Tramonto - Salão Gourmet
No coração de Guarapuava, no Paraná, surge o Complexo Tramonto, que abrange dois condomínios fechados, lotes externos, serviços e um clube exclusivo. Em parceria com Priscilla Muller Arquitetura e Design, desenvolvemos o projeto arquitetônico, enquanto eles se especializaram no design de interiores. A região, conhecida por seus amplos terrenos e o charme de pequenas chácaras, está passando por mudanças com o novo plano diretor que incentiva o adensamento. Nosso foco é preservar o caráter bucólico da área, combinando inovação com um estilo de vida campestre em harmonia com a natureza.
No coração de Guarapuava, no Paraná, surge o Complexo Tramonto, que abrange dois condomínios fechados, lotes externos, serviços e um clube exclusivo. Em parceria com Priscilla Muller Arquitetura e Design, desenvolvemos o projeto arquitetônico, enquanto eles se especializaram no design de interiores. A região, conhecida por seus amplos terrenos e o charme de pequenas chácaras, está passando por mudanças com o novo plano diretor que incentiva o adensamento. Nosso foco é preservar o caráter bucólico da área, combinando inovação com um estilo de vida campestre em harmonia com a natureza.
No coração de Guarapuava, no Paraná, surge o Complexo Tramonto, que abrange dois condomínios fechados, lotes externos, serviços e um clube exclusivo. Em parceria com Priscilla Muller Arquitetura e Design, desenvolvemos o projeto arquitetônico, enquanto eles se especializaram no design de interiores. A região, conhecida por seus amplos terrenos e o charme de pequenas chácaras, está passando por mudanças com o novo plano diretor que incentiva o adensamento. Nosso foco é preservar o caráter bucólico da área, combinando inovação com um estilo de vida campestre em harmonia com a natureza.



Cada condomínio contará com um salão gourmet, projetado com um design simples e funcional. Composta por dois blocos, inclui banheiros acessíveis e uma mesa de sinuca em um bloco, e uma cozinha equipada, mesas e uma lareira no outro. Entre os blocos posicionamos um espaço de estar com esquadrias que se abrem para a área externa reforça a integração com o ambiente natural, mantendo a atmosfera campestre do local.
Cada condomínio contará com um salão gourmet, projetado com um design simples e funcional. Composta por dois blocos, inclui banheiros acessíveis e uma mesa de sinuca em um bloco, e uma cozinha equipada, mesas e uma lareira no outro. Entre os blocos posicionamos um espaço de estar com esquadrias que se abrem para a área externa reforça a integração com o ambiente natural, mantendo a atmosfera campestre do local.
Cada condomínio contará com um salão gourmet, projetado com um design simples e funcional. Composta por dois blocos, inclui banheiros acessíveis e uma mesa de sinuca em um bloco, e uma cozinha equipada, mesas e uma lareira no outro. Entre os blocos posicionamos um espaço de estar com esquadrias que se abrem para a área externa reforça a integração com o ambiente natural, mantendo a atmosfera campestre do local.
Dois materiais predominam no edificação: a pedra madeira e o concreto. A pedra madeira, sendo um material natural, foi utilizada nos grandes blocos. Já o concreto, conhecido como pedra artificial, aparece na laje que conecta os dois volumes e na moldura das janelas em fita. Essa combinação de elementos naturais e artificiais criou um visual que remete a uma cabana contemporânea. Assim, conseguimos reforçar e reverenciar a atmosfera charmosa deste belo bairro de Guarapuava.
Dois materiais predominam no edificação: a pedra madeira e o concreto. A pedra madeira, sendo um material natural, foi utilizada nos grandes blocos. Já o concreto, conhecido como pedra artificial, aparece na laje que conecta os dois volumes e na moldura das janelas em fita. Essa combinação de elementos naturais e artificiais criou um visual que remete a uma cabana contemporânea. Assim, conseguimos reforçar e reverenciar a atmosfera charmosa deste belo bairro de Guarapuava.
Dois materiais predominam no edificação: a pedra madeira e o concreto. A pedra madeira, sendo um material natural, foi utilizada nos grandes blocos. Já o concreto, conhecido como pedra artificial, aparece na laje que conecta os dois volumes e na moldura das janelas em fita. Essa combinação de elementos naturais e artificiais criou um visual que remete a uma cabana contemporânea. Assim, conseguimos reforçar e reverenciar a atmosfera charmosa deste belo bairro de Guarapuava.

















