Uma antiga casa ganha nova vocação como sede de uma incorporadora.
Uma antiga casa ganha nova vocação como sede de uma incorporadora.
Uma antiga casa ganha nova vocação como sede de uma incorporadora.
Ficha Técnica
Ficha Técnica
Ficha Técnica
Localização Curitiba, Paraná, Brasil
Área 234 m2
Ano do Projeto 2023
Imagens: Thiago Augustus P. Alves
Fornecedores
Eliane
Boxmob
Localização Curitiba, Paraná, Brasil
Área 234 m2
Ano do Projeto 2023
Imagens: Thiago Augustus P. Alves
Fornecedores
Eliane
Boxmob
Localização Curitiba, Paraná, Brasil
Área 234 m2
Ano do Projeto 2023
Imagens: Thiago Augustus P. Alves
Fornecedores
Eliane
Boxmob
Sede Moratti Empreendimentos
Sede Moratti Empreendimentos
Sede Moratti Empreendimentos
Na busca por um novo espaço, a Moratti encontrou uma antiga residência com uma arquitetura moderna que logo chamou a atenção. A casa foi projetada pelo saudoso arquiteto Manoel Coelho, autor do Teatro Positivo, do Campus Positivo e de tantos outros projetos emblemáticos.
Nosso desafio foi transformar essa joia em uma nova sede — dar a ela um novo uso, sem apagar sua essência. A proposta foi intervir com leveza, partindo do que já existia, respeitando a arquitetura original e atualizando os espaços com delicadeza e intenção.
Na busca por um novo espaço, a Moratti encontrou uma antiga residência com uma arquitetura moderna que logo chamou a atenção. A casa foi projetada pelo saudoso arquiteto Manoel Coelho, autor do Teatro Positivo, do Campus Positivo e de tantos outros projetos emblemáticos.
Nosso desafio foi transformar essa joia em uma nova sede — dar a ela um novo uso, sem apagar sua essência. A proposta foi intervir com leveza, partindo do que já existia, respeitando a arquitetura original e atualizando os espaços com delicadeza e intenção.
Na busca por um novo espaço, a Moratti encontrou uma antiga residência com uma arquitetura moderna que logo chamou a atenção. A casa foi projetada pelo saudoso arquiteto Manoel Coelho, autor do Teatro Positivo, do Campus Positivo e de tantos outros projetos emblemáticos.
Nosso desafio foi transformar essa joia em uma nova sede — dar a ela um novo uso, sem apagar sua essência. A proposta foi intervir com leveza, partindo do que já existia, respeitando a arquitetura original e atualizando os espaços com delicadeza e intenção.
Ao longo dos anos, o antigo proprietário havia feito diversas reformas internas, muitas vezes desconectadas entre si. Por isso, entendemos nosso papel não como o de impor uma nova linguagem, mas sim como o de costurar as camadas do tempo e evoluir a partir delas — trazendo um novo fôlego ao lugar sem romper sua harmonia.
Cada intervenção foi cuidadosamente pensada para evitar rupturas drásticas. O objetivo era que, ao final, o espaço parecesse ter sempre sido assim — como se o novo pertencesse organicamente à história da casa.
Ao longo dos anos, o antigo proprietário havia feito diversas reformas internas, muitas vezes desconectadas entre si. Por isso, entendemos nosso papel não como o de impor uma nova linguagem, mas sim como o de costurar as camadas do tempo e evoluir a partir delas — trazendo um novo fôlego ao lugar sem romper sua harmonia.
Cada intervenção foi cuidadosamente pensada para evitar rupturas drásticas. O objetivo era que, ao final, o espaço parecesse ter sempre sido assim — como se o novo pertencesse organicamente à história da casa.
Ao longo dos anos, o antigo proprietário havia feito diversas reformas internas, muitas vezes desconectadas entre si. Por isso, entendemos nosso papel não como o de impor uma nova linguagem, mas sim como o de costurar as camadas do tempo e evoluir a partir delas — trazendo um novo fôlego ao lugar sem romper sua harmonia.
Cada intervenção foi cuidadosamente pensada para evitar rupturas drásticas. O objetivo era que, ao final, o espaço parecesse ter sempre sido assim — como se o novo pertencesse organicamente à história da casa.



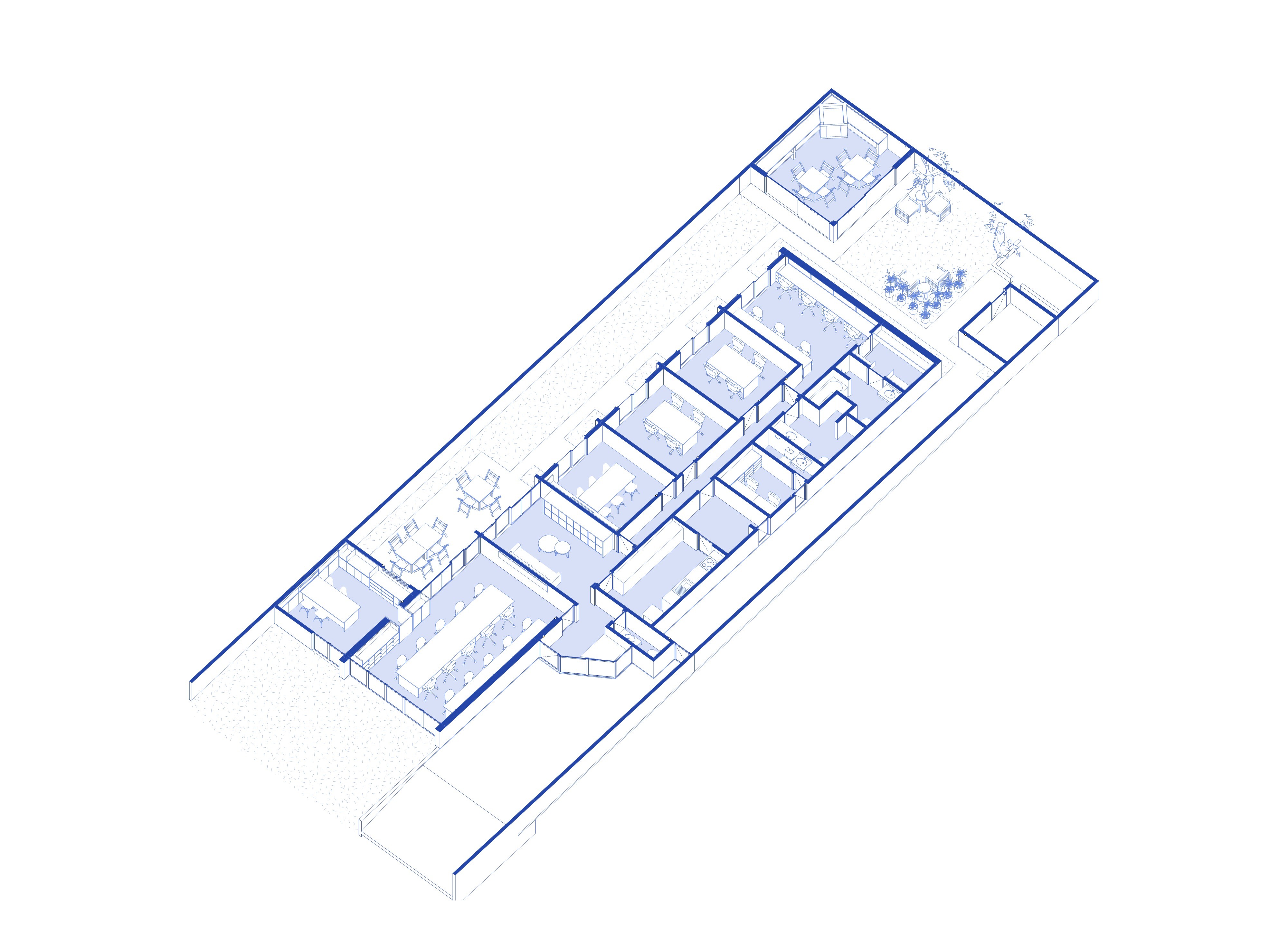
As esquadrias azuis (por coincidência — ou acaso feliz — da mesma cor da identidade da Moratti!) seguem em destaque. A antiga sala de estar se transformou em um open office voltado para a rua e o jardim frontal. Ao lado, um antigo depósito virou uma sala de reunião “secreta”, com a porta discretamente embutida na marcenaria. A sala de jantar, próxima à cozinha, passou a funcionar como recepção, e o hall de entrada, além de acolher, agora também exibe maquetes e protótipos do escritório. Já os antigos quartos foram convertidos em salas privativas de trabalho, todas com acesso direto ao jardim interno, fortalecendo a conexão entre interior e exterior.
Cada gesto buscou revelar a arquitetura silenciosa que já habitava o lugar — e abrir espaço para que ela continuasse respirando, com novos usos, novas histórias.
As esquadrias azuis (por coincidência — ou acaso feliz — da mesma cor da identidade da Moratti!) seguem em destaque. A antiga sala de estar se transformou em um open office voltado para a rua e o jardim frontal. Ao lado, um antigo depósito virou uma sala de reunião “secreta”, com a porta discretamente embutida na marcenaria. A sala de jantar, próxima à cozinha, passou a funcionar como recepção, e o hall de entrada, além de acolher, agora também exibe maquetes e protótipos do escritório. Já os antigos quartos foram convertidos em salas privativas de trabalho, todas com acesso direto ao jardim interno, fortalecendo a conexão entre interior e exterior.
Cada gesto buscou revelar a arquitetura silenciosa que já habitava o lugar — e abrir espaço para que ela continuasse respirando, com novos usos, novas histórias.
As esquadrias azuis (por coincidência — ou acaso feliz — da mesma cor da identidade da Moratti!) seguem em destaque. A antiga sala de estar se transformou em um open office voltado para a rua e o jardim frontal. Ao lado, um antigo depósito virou uma sala de reunião “secreta”, com a porta discretamente embutida na marcenaria. A sala de jantar, próxima à cozinha, passou a funcionar como recepção, e o hall de entrada, além de acolher, agora também exibe maquetes e protótipos do escritório. Já os antigos quartos foram convertidos em salas privativas de trabalho, todas com acesso direto ao jardim interno, fortalecendo a conexão entre interior e exterior.
Cada gesto buscou revelar a arquitetura silenciosa que já habitava o lugar — e abrir espaço para que ela continuasse respirando, com novos usos, novas histórias.








